REFORM CONTEST 2021
デザイン部門全国優秀賞
一戸建てテーマ/『STAY HOME』にぴったり!

- 会社名
株式会社リビング春日井
- 担当者
L-Styleデザインチーム
- 住所
〒486-0807 愛知県春日井市大手町3-14-13
- URL
- 施主様ご要望:リフォームの動機
- ご主人の実家で同居されるのを機にリフォーム。
【ご要望】①扉で仕切られない広いLDK。②ご夫婦の共通の趣味である大量の漫画本を収納すること。読んで楽しめるスペースを作ること。③ご家族に迷惑にならない麻雀部屋をつくること。
- プラン決定のポイントと工夫
- ご高齢のおばあ様が戸惑わないように、水廻りの位置は変えずにプラン。
①間口のとれる西側にLDK収納をたっぷり作り、広く使える空間に。②漫画を収納する為に壁が必要。壁を作ることによって、空間が分かれ、それぞれ趣向の異なるインテリアが楽しめます。③麻雀部屋は防音仕様にして対策。
- 施主様ご感想:満足度など
- こんな時期なので、なかなかお友達も集まれないけど、皆が集まれるようになったら、これからは雑魚寝ではなく、漫画部屋でそれぞれ寝てもらえそう。早くそんなことが出来るようになるといいな。お友達を呼ぶのが楽しみです!
- 選択した性能向上の特性に配慮した点
- 改装前・改装後を耐震ソフトで確認し、現状より数値が下がらないよう、筋交い移設等検討致しました。

リフォーム概要 / 愛知県N様邸
- 家族構成 ご夫婦・お子様・お母様・お祖母様
- 間取り 7LDK
- 築年数 25年
- 住宅形態 在来木造
- 費用 2860万
- リフォーム面積 278㎡
- リフォーム箇所 278㎡
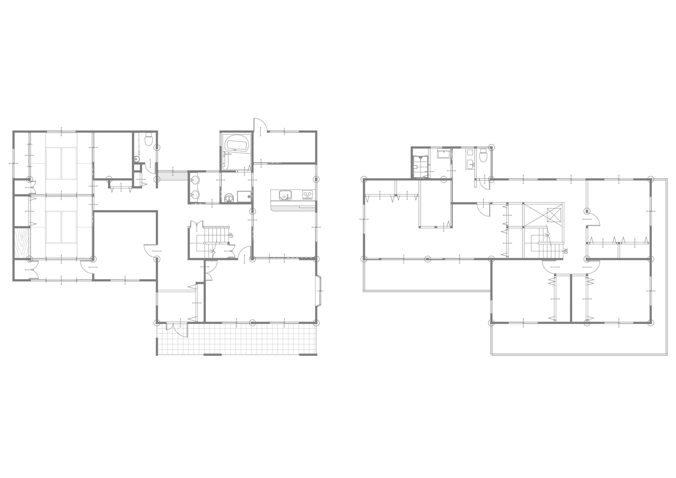
リフォーム前
リフォーム後
間取り
Before
After審査員からのコメント
会社データ
- 会社名
- 株式会社リビング春日井
- 対応可能エリア
- 愛知県、岐阜県
- 本社住所
- 〒486-0807 愛知県春日井市大手町3-14-13
- 営業時間
- 9:00~18:00
- お問い合わせ
- 0568-82-87170568-82-8723
- 会社概要
- [商号]株式会社 リビング春日井
[代表者]代表取締役社長 井上 賢一郎
[設立] 1990年 3月 (創業1983年)
[資本金]1,000万円(2021年2月末現在)
[従業員数]17名(2021年9月末現在)
[年商] 5.8億円(2020年2月末現在)
[建設業許可番号] 愛知県知事許可(般-3)第49450号
[資格保有者]二級建築士、1級施工管理技士、2級施工管理技士、インテリアコーディネーター、カラーコーディネーター、福祉住環境コーディネーター2級、宅地建物取引士、リフォームスタイリスト1級、増改築相談員





家の中にもう一つ別の世界があるような部屋。住まい手の趣味で満たされていて、部屋が住まい手の自己紹介のようだ。
大量の漫画の棚を仕切りにしながらいろんなシーンをつくるプランが巧み。麻雀部屋に防音を施すなど同居する母親への配慮も見事。