REFORM CONTEST 2023
デザイン部門
マンションテーマ/交流する住まいへ~母と娘の心地良い暮らし~

- 会社名
株式会社OKUTA
- 担当者
LOHAS studio デザインチーム
- 住所
〒330-0802 埼玉県さいたま市大宮区宮町3-25
- URL
- 施主様ご要望:リフォームの動機
- 重度障害で電動車椅子の娘様と介護するお母様。ずっと住まわれていた家から引っ越し、仲間が集まりやすい空間へとリノベーションをご決意。
- プラン決定のポイントと工夫
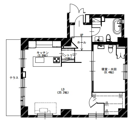
- 車椅子の娘様とお母様が快適に暮らせるよう、玄関ホールは電動車椅子用スロープとお母様用手すりを設置し、パントリーから回遊できる動線に。娘様の個室は3本引きの大開口引戸にし、自立できる水廻りを制作。お母様のバスルームは別に設け、快適に過ごせる工夫をしている。障害も人の交流も障壁(バリア)を感じない空間を目指した。
- 施主様ご感想:満足度など
- 仲間を集めてのレッスンを開催するなど、毎日家族以外の誰かが居られる空間になった。キッチンを中心に、必要な時は間仕切り自由に快適に暮らしています。
- 選択した性能向上の特性に配慮した点

リフォーム概要 / 東京都 T様邸
- 家族構成 母、娘
- 間取り -
- 築年数 23年
- 住宅形態 鉄骨鉄筋コンクリート造
- 費用 2900万円
- リフォーム面積 81㎡
- リフォーム箇所 LDK、寝室、水廻り、WIC、その他
リフォーム前
リフォーム後
間取り
Before
After審査員からのコメント
会社データ
- 会社名
- 株式会社OKUTA
- 対応可能エリア
- 東京、神奈川、埼玉、千葉
- 本社住所
- 〒330-0802 埼玉県さいたま市大宮区宮町3-25
- 支店・営業所
- LOHAS studio(首都圏18店舗)
- 営業時間
- 10:00~18:00
- お問い合わせ
- 0120-19-5955
- 会社概要
- 社 名:株式会社 OKUTA
店 舗:LOHAS studio(首都圏16店舗)
Handyman(首都圏50拠点COM加盟店含む)
本 社:埼玉県さいたま市大宮区宮町3-25
代表取締役会長:奥田 イサム
代表取締役社長:小泉 太
設 立:1992年1月(創業:1991年)
社員数:約300名
資本金:6,700万円
売 上:2022年9月度決算 76億200万円(OKUTA Family連結決算)
【事業内容】
新築・増改築リフォームの企画・設計・施工・アフター管理、不動産仲介、住宅建材・設備機器販売






中古マンション購入。水回り移動も最新の注意を払いながら見事に実践し、三方窓のある物件をうまく活用して、お二人の想いをよくここまで昇華させてくれました。ヒヤリングをしっかりしてお客様に寄り添う思いが図面に反映されています。インテリアも明るく落ち着いた空間でソファーの差し色が決まってます。大きなクローゼットはリビング近く、心地よく暮らすための影の立役者ですね。