REFORM CONTEST 2025
デザイン部門全国優秀賞
マンションテーマ/土間から座敷書斎へ~職と住を分ける暮らしの知恵~

- 会社名
株式会社OKUTA
- 担当者
LOHAS studio デザインチーム
- 住所
〒330-0802 埼玉県さいたま市大宮区宮町3-25
- URL
- 施主様ご要望:リフォームの動機
- 築38年、ほぼ新築当初から住んでおり、住み慣れたこの土地で終の棲家として考えた時、暑さ・寒さ・結露を解消したいと思われた。また全体的に設備も一新して、収納不足や掃除のしにくいカーペット床も変えたい。なるべく自然素材を多く取り入れたい、お手持ちの家具を活かしたいというご希望。
- プラン決定のポイントと工夫
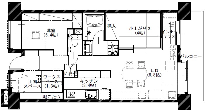
- 間取りは大きく変えず、今の暮らし方を踏襲しつつ、適所に合わせた収納量を確保し、ライフスタイルに合わせてドア数を減らした。小上がりを2か所つくり、土間からはじまる座敷の書斎を造作。住まいの中で職と住が切り替えられる工夫をした。
- 施主様ご感想:満足度など
- 2つの土間があることにより、住まいの中で別空間にいるような感じがします。収納も立体的に行うことが出来、大きく間取りは変更しなくとも、2倍空間と暮らしが愉しめるようになりました。
- 選択した性能向上の特性に配慮した点
- 内窓設置で暑さ寒さ対策。
漆喰を施工し室内空気環境を整えた。

リフォーム概要 / 東京都S・T様邸
- 家族構成 大人2名
- 間取り 2SLDK
- 築年数 38年
- 住宅形態 鉄筋コンクリート造
- 費用 280万円
- リフォーム面積 4.91㎡
- リフォーム箇所 玄関・ホール
リフォーム後
間取り
Before
After審査員からのコメント
会社データ
- 会社名
- 株式会社OKUTA
- 対応可能エリア
- 東京、神奈川、埼玉、千葉、栃木
- 本社住所
- 〒330-0802 埼玉県さいたま市大宮区宮町3-25
- 支店・営業所
- 首都圏20店舗
- 営業時間
- 10:00~18:00
- お問い合わせ
- 048-631-1163
- 会社概要
- 社 名:株式会社 OKUTA
店 舗:LOHAS studio(首都圏20店舗)
Handyman(首都圏50店舗COM加盟店含む)
本 社:埼玉県さいたま市大宮区宮町3-25
代表取締役会長:奥田 イサム
代表取締役社長:小泉 太
設 立:1992年1月(創業:1991年)
社員数:約300名
資本金:6,700万円
売 上:2024年9月度決算:76億6,800万円(OKUTA Family連結決算)
【事業内容】
高品質・高性能で健康と環境を配慮した住宅デザインリフォーム・長期優良住宅推進モデル事業対応戸建住宅-マンション(LOHAS studio)・水まわりに特化したリフォーム(Handyman)・新築(LOHASTA home)・不動産仲介(OKUTA不動産)・オリジナル建材開発販売・自然エネルギー機器(太陽光発電、太陽熱温水等)販売(OK-DEPOT)
*長期優良住宅推進モデル事業対応(戸建住宅、マンション)

大きな間取り変更はないものの、玄関の両横にあった2室の洋室を扉の無い空間に仕上げることで、38年間の暮らしを踏襲しつつも、ガラッと変わった様を見ることができます。扉の無い洋室と、土間スペース、1.3畳の座敷書斎の設え、考え方は秀逸です。LDKに設置されたもう一つの子上がりと併せ、住戸内に2つの離れを持つようなイメージです。「2つの別空間を持ったようです。」との、住まい手の言葉にも納得です。小さなスペースの役割をさらに進めるようなリノベーションです。(226)