REFORM CONTEST 2025
デザイン部門全国優秀賞
一戸建てテーマ/夫婦それぞれの夢を叶える2つのリビング

- 会社名
株式会社安江工務店
- 担当者
杉浦 千鶴
- 住所
〒460-0008 愛知県名古屋市中区栄2丁目2−23 アーク白川公園ビルディング
- URL
- 施主様ご要望:リフォームの動機
- ご両親から家を継承したご夫婦。奥様は友人や家族とくつろげる空間を、一方、ご主人様は大会に出場するほど自転車がご趣味、愛車を眺めたり仲間と楽しめる自転車工房のある空間を希望されました。また各場所に機能的な収納が欲しい。それぞれの友達が集まって楽しめる場所を造りたい。
- プラン決定のポイントと工夫
- 構造的に2本の梁補強が必要でした。2つの大きなリビングLDK・自転車工房)を中心に回遊空間をデザインしました。自転車工房はインテリアに拘り、タイヤ幅の違う自転車に合わせ、5タイプの溝を作りながら装飾的な輪留めデザインとしました。タイプの違うこの2つの個室は、回遊する事で空間のギャップを楽しめるようにした。
- 施主様ご感想:満足度など
- 自転車工房の壁・収納は想い以上に使い勝手がいいです。1階がぐるっと回遊できる所とリビング全体の色合いが素敵です。欄間、扉の再利用はとてもこちらの話を汲み取ってくれ素敵なものになったと思います。またLDKカウンター下収納、洗面台や廊下収納も使い勝手はよいです。とても感謝しています。
- 選択した性能向上の特性に配慮した点
- 断熱性・省エネ設備

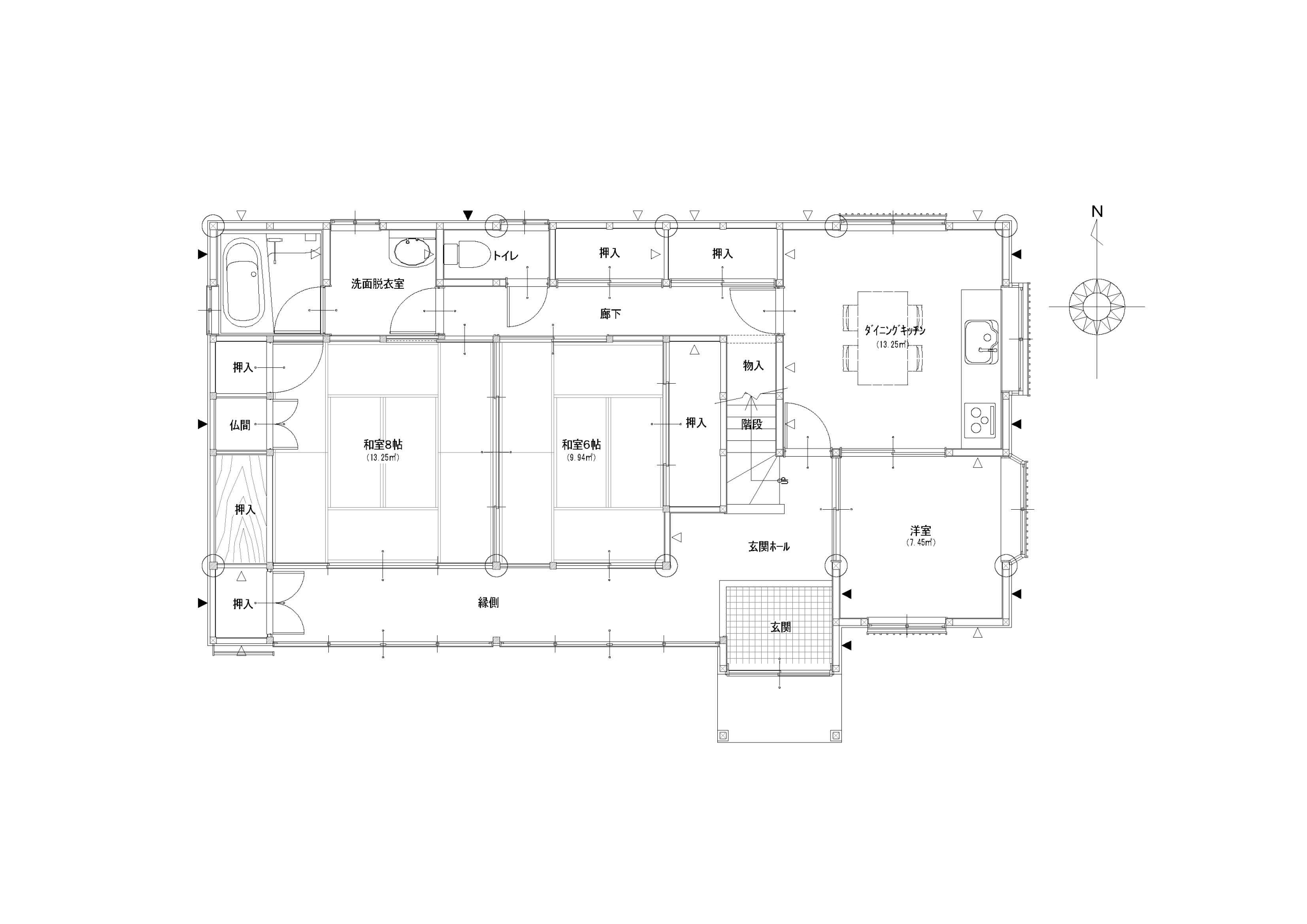
リフォーム概要 / 愛知県M様邸
- 家族構成 大人3名
- 間取り 3+L(2)DK
- 築年数 38年
- 住宅形態 木造
- 費用 2100万円
- リフォーム面積 159㎡
- リフォーム箇所 戸建て全面 159㎡
リフォーム後
間取り
Before
After審査員からのコメント
会社データ
- 会社名
- 株式会社安江工務店
- 対応可能エリア
- 愛知県・岐阜県・兵庫県の指定エリア
- 本社住所
- 〒460-0008 愛知県名古屋市中区栄2丁目2−23 アーク白川公園ビルディング
- 支店・営業所
- 愛知県・岐阜県・兵庫県に17店舗
- 営業時間
- 8:30~17:30
- お問い合わせ
- 052-223-1100052-223-0900
- 会社概要
- 社 名:株式会社 安江工務店
店 舗:~愛知県内~
天白店:名古屋市天白区島田1-1509
千種店:名古屋市千種区香流橋2-5-19
中村店:名古屋市中村区豊国通3-1
緑店 :名古屋市緑区鴻仏目1-110
北店 :名古屋市北区城見通2-1
御器所店:名古屋市昭和区御器所通3-8-1
藤が丘店:名古屋市名東区藤見が丘20-1
刈谷東浦店:東浦町緒川北新田40-1
春日井店:春日井市八田町7-4-1
豊田店:豊田市小坂本町5-13-5
一宮店:一宮市城崎通5-28-1
岡崎店:岡崎市戸崎町沢田53
瀬戸尾張旭店:尾張旭市東大道町曽我廻間2256-1
豊橋店:豊橋市中岩田4-8-17
豊川店:豊川市三蔵子町一里塚56-1
~岐阜県内~
岐阜県庁前店:岐阜市薮田南3-1-2
~兵庫県内~
神戸HDC店:神戸市中央区東川崎町1-2-2 ハウジング・デザイン・センター神戸4階
本 社:愛知県名古屋市中区栄2-2-23 アーク白川公園ビルディング
代表取締役社長:山本 賢治
設 立:1975年6月(創業:1970年4月)
社員数:280名(令和7年10月現在)※グループ社員数含む
資本金:5,000万円 (令和7年5月現在)
売 上:令和6年12月期 80億8,265万円(連結売上高)
【事業内容】
『安らぐ空間』を大切にし、住まいのご提案をしています。
住まいを直し、再生するリフォーム・リノベーション事業、住み継ぐ不動産流通事業、建てる新築住宅事業という循環型住宅ビジネスモデルの構築を目指します。

住空間の設計では、居住者間の適切な距離感が、持続可能で快適な生活様式を形成するうえで重要な要素となります。自己実現や家族の幸福を重視した設計手法は、健康的かつ充実した生活環境を長寿社会においても提供可能です。リノベーションは、こうした生活価値の向上に資する有効な手段です。また、自転車ラックについては、タイヤ幅に合わせた精密なデザインによって高い美観と機能性が両立しています。