REFORM CONTEST 2025
デザイン部門全国優秀賞
一戸建てテーマ/古き美をつなぐ-猫と暮らす大人リノベ-

- 会社名
株式会社ホームライフ
- 担当者
中川 隆子
- 住所
〒673-1464 兵庫県加東市上中182-1
- URL
- 施主様ご要望:リフォームの動機
- ご両親のお住まいであったお家を引き継ぎリノベーションをお考えでしたが、全てを刷新すると予算を大幅にオーバーするという事で弊社にご相談頂きました。ネコちゃん2匹と暮らしているためキッチンは個室にしたいとのご希望でした。
- プラン決定のポイントと工夫
- 元々凝った造りの素敵なお家だったため、引戸など精巧で美しいところを残しながら金額も抑えました。サッシや断熱材で寒い暑い問題を解決し、平屋のとても広いお家も無駄のない動線の間取りになりました。建具高さが1800㎜無かったため、LDK真ん中の欄間は取り除きより広さを感じられる空間になりました。
- 施主様ご感想:満足度など
- 子供の頃の懐かしい思い出を残しながらのリノベーションを終え、とても満足しています。明るい日差しがたっぷり入るリビングダイニングは子供達やお友達が遊びに来てくれた際に必ず落ち着く空間だと言ってくれます。これから猫たちと一緒に楽しく暮らしていけそうです。
- 選択した性能向上の特性に配慮した点
- サッシを断熱性能の高いものに交換
床下や外壁周り天井裏に断熱材を充填

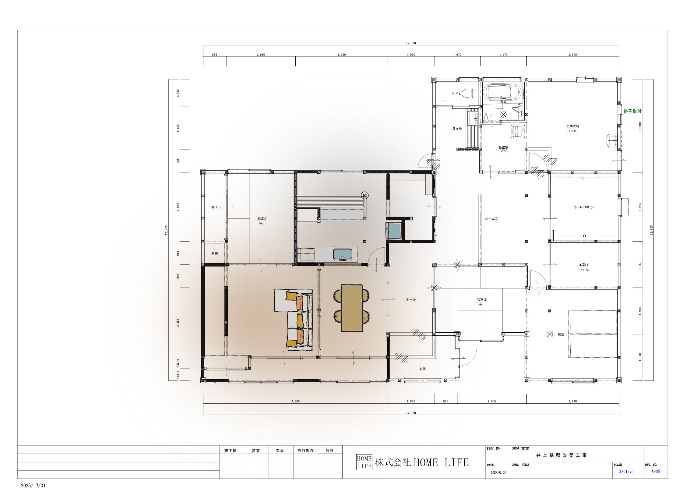
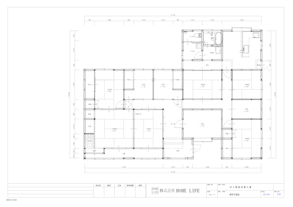
リフォーム概要 / 兵庫県I様邸
- 家族構成 大人2名、猫2匹
- 間取り -
- 築年数 55年
- 住宅形態 在来木造
- 費用 1800万円
- リフォーム面積 182㎡
- リフォーム箇所 戸建て全面
リフォーム後
間取り
Before
After審査員からのコメント
会社データ
- 会社名
- 株式会社ホームライフ
- 対応可能エリア
- 兵庫県、京都府、大阪府、滋賀県
- 本社住所
- 〒673-1464 兵庫県加東市上中182-1
- 支店・営業所
- 23店舗
- 営業時間
- 9:00~18:00
- お問い合わせ
- 0120-49-0358
- 会社概要
- 社 名:株式会社 ホームライフ
店 舗:アーキホームライフ(23店舗)
本 社:京都府福知山市和久市町123
代表取締役社長:手﨑 孝道
設 立:2005年10月
社員数:約232名
資本金:1000万円
売 上:2023年7月度決算 104億
【事業内容】
リノベーション・リフォーム・戸建て新築・店舗
企画・デザイン・設計・施工

本リノベーションは、明確な優先順位に基づきコストパフォーマンスを重視して計画されました。今後の生活スタイルに対応するため、機能面の充実が図られ、意匠については伝統的デザインの継承を徹底しています。住環境全体に調和のある仕上げが施されており、伝統の維持・継承という観点からも意義深いデザインとなっています。特に建具や書院造の意匠を保存・活用したことで、空間全体の格調が向上しています。