REFORM CONTEST 2025
デザイン部門全国優秀賞
マンションテーマ/重ねたのは空間と心地よさ

- 会社名
株式会社OKUTA
- 担当者
LOHAS studio デザインチーム
- 住所
〒330-0802 埼玉県さいたま市大宮区宮町3-25
- URL
- 施主様ご要望:リフォームの動機
- 築29年のマンション。一度行ったのリフォームでは満足出来る提案が得られず、ずっと自分たちの好みに合う空間に憧れをもっていた。老後を見据えて、フルリフォームを検討。
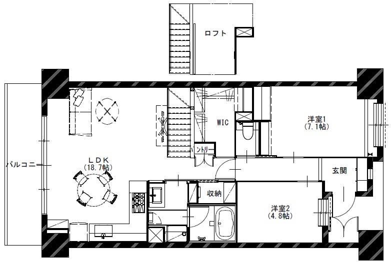
特に現状のロフトのような空間はうまく使いこなせず、天井高さがあるわりに感じる圧迫感をどうにかしたいと思っていた。
- プラン決定のポイントと工夫
- ロフト空間とキッチン配置が今回のテーマ。高く開放感のある空間をより広く感じられるように計画。ロフトへは使い勝手を考え、あがりやすい固定階段に。ロフト下をWICとし、空間の有効活用とした。手すりも視線が抜ける物にし圧迫感を軽減。キッチンはL字型に配置したことで平面上の広さ感を演出した。
- 施主様ご感想:満足度など
- 開放感のある空間活用を提案してもらいとても満足しています。活用できなかったロフト空間も上がりやすくしてもらったことでリビングの一部として有効的に活用しています。珪藻土や無垢のカウンターなどを多様してもらったことで、自分たちらしい心地よい空間になりました。

リフォーム概要 / 千葉県Y・S様邸
- 家族構成 大人3名
- 間取り 2SLDK
- 築年数 29年
- 住宅形態 鉄骨鉄筋コンクリート造
- 費用 290万円
- リフォーム面積 19.7㎡
- リフォーム箇所 リビングダイニング
リフォーム後
間取り
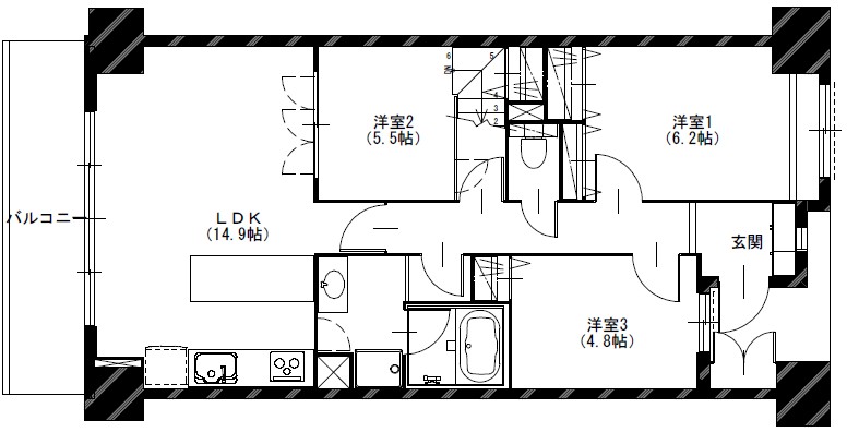
Before
After審査員からのコメント
会社データ
- 会社名
- 株式会社OKUTA
- 対応可能エリア
- 東京、神奈川、埼玉、千葉、栃木
- 本社住所
- 〒330-0802 埼玉県さいたま市大宮区宮町3-25
- 支店・営業所
- 首都圏20店舗
- 営業時間
- 10:00~18:00
- お問い合わせ
- 048-631-1163
- 会社概要
- 社 名:株式会社 OKUTA
店 舗:LOHAS studio(首都圏20店舗)
Handyman(首都圏50店舗COM加盟店含む)
本 社:埼玉県さいたま市大宮区宮町3-25
代表取締役会長:奥田 イサム
代表取締役社長:小泉 太
設 立:1992年1月(創業:1991年)
社員数:約300名
資本金:6,700万円
売 上:2024年9月度決算:76億6,800万円(OKUTA Family連結決算)
【事業内容】
高品質・高性能で健康と環境を配慮した住宅デザインリフォーム・長期優良住宅推進モデル事業対応戸建住宅-マンション(LOHAS studio)・水まわりに特化したリフォーム(Handyman)・新築(LOHASTA home)・不動産仲介(OKUTA不動産)・オリジナル建材開発販売・自然エネルギー機器(太陽光発電、太陽熱温水等)販売(OK-DEPOT)
*長期優良住宅推進モデル事業対応(戸建住宅、マンション)

階高の高さを活かしたマンション住戸のリノベーション。既存の躯体の作り出した空間をうまく活かす断面計画が評価された。リビングに面した床下収納+個室を個室+ロフトに作り替え、リビングからロフトに向かって抜けるようにしたことで、大らかなリビングダイニングが生まれている。