REFORM CONTEST 2025
デザイン部門全国優秀賞
一戸建てテーマ/「大切なモノ」を生き返らせる家づくり

- 会社名
株式会社ナサホーム
- 担当者
羽田 武大 / 瓜生 拓矢
- 住所
〒530-0017 大阪府大阪市北区角田町8-1 大阪梅田ツインタワーズ・ノース17階
- URL
- 施主様ご要望:リフォームの動機
- 祖母が住んでいた所有テナントビルの6、7Fに移り住むために全面改装を決意。長い間空き家だったので内部は荒れている状態だった。大人が寛げる家にしたい。夫婦それぞれの個室や子供達が帰省した時に泊まるゲストルームが欲しい。水廻りは広くしたい。祖母が大事にしていた応接セットをメインとして使いたい。
- プラン決定のポイントと工夫
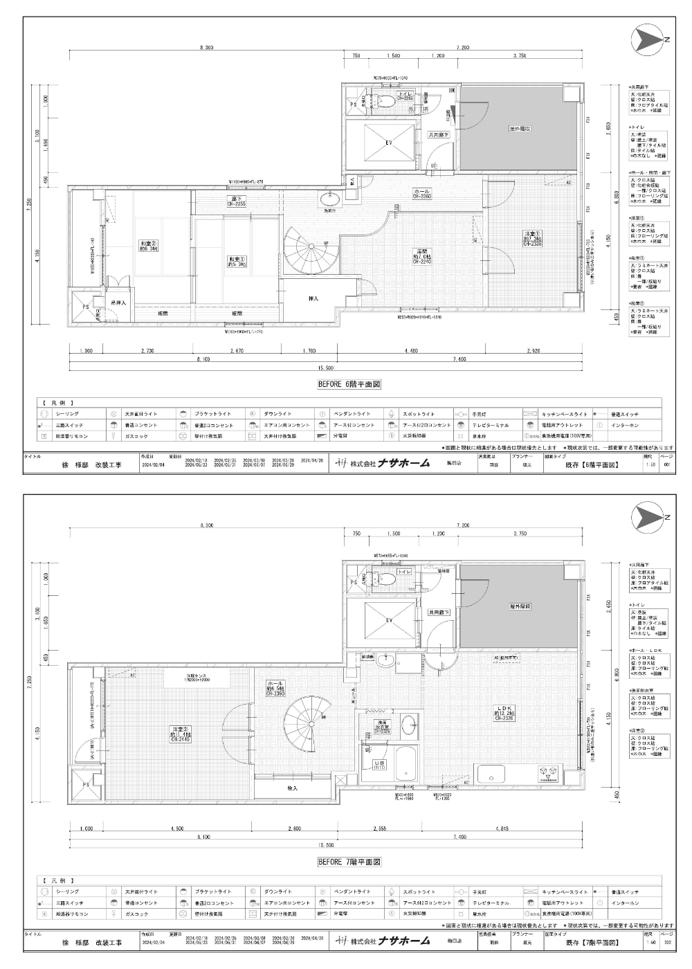
- 螺旋階段を中心に水廻りを配置したことでサイズアップができ、分離したリビングはゆっくりと寛げる空間になった。各洋室には多目的に使用できる造作カウンターを設置。応接セットの存在感を際立たせるため、玄関入口から繋がるロビーをあえて広めに確保した。グレー調で統一したシンプルモダンの住まいが完成した。
- 施主様ご感想:満足度など
- 築40年を超えた実家は当時のままの間取りということもあり何から手をつけて良いか分からない状態でしたが、的確なアドバイスでストレス無くリフォームができました。提案内容を見た時に感動し、ナサホームさんにお任せしようと決めました。毎日を快適に過ごす事ができ、思いを形にしてもらえ大満足です。
- 選択した性能向上の特性に配慮した点
- 螺旋階段を中心に水廻りを移設し、各空間に繋がりを持たせた間取りへと変更。祖母の想い出の品が映える提案を行った。

リフォーム概要 / 大阪府J様邸
- 家族構成 大人2名
- 間取り 6F:3R+Lobby+WIC/7F:L+DK
- 築年数 44年
- 住宅形態 S造
- 費用 2,254万円
- リフォーム面積 128㎡
- リフォーム箇所 戸建て全面
リフォーム後
間取り
Before
After審査員からのコメント
会社データ
- 会社名
- 株式会社ナサホーム
- 対応可能エリア
- 大阪、兵庫、奈良、京都、愛知、東京
- 本社住所
- 〒530-0017 大阪府大阪市北区角田町8-1 大阪梅田ツインタワーズ・ノース17階
- 支店・営業所
- 大阪、兵庫、奈良、京都、愛知、東京に34店舗
- 営業時間
- 10:00~18:00
- お問い合わせ
- 0120-732-44006-6311-7374
- 会社概要
- 社 名:株式会社 ナサホーム
店 舗:ナサホーム(大阪・兵庫・奈良・愛知・東京に14店舗)
みずらぼ(大阪・兵庫・奈良・京都に20店舗)
本 社:大阪府大阪市北区角田町8-1 大阪梅田ツインタワーズ・ノース17階
代表取締役:江川 貴志
設 立:1996年10月7日
社員数:353名
資本金:19,902,060円
売 上:2025年3月度決算 99.2億円
【事業内容】
■戸建て・マンションリフォーム
■水廻りリフォーム
■外壁・屋根・エクステリアリフォーム

祖母から受け継いだビルの改装は、メゾネット住宅の螺旋階段を生かしたプランニングとなっています。ユーティリティーの快適性を考慮しつつ、螺旋階段廻りの空きスペースの有効利用を実現。ガラス引き戸を採用することによって、一体感を造り上げています。また、空間デザインの手がかりとして、祖母が大切にした応接セットを配置した玄関ロビーは、「時のデザイン」を象徴するスペースとなっています。暮らしの中に「大切なモノ」を蘇らせる空間を持ち、ゆとりのある日常が想像できます。まとまりのある、よく考えられた住まいのデザインです。