REFORM CONTEST 2025
デザイン部門全国優秀賞
一戸建てテーマ/新旧が調和する家

- 会社名
株式会社タカノホーム
- 担当者
板倉 諒
- 住所
〒811-1351 福岡県福岡市南区屋形原1-36-20
- URL
- 施主様ご要望:リフォームの動機
- 実家にあたる本物件ですが、当時もかなりこだわって新築したそうです。
随所に見える職人さんの技術の高さや今では希少となった素材を活かしつつ、自分たちの好きなテイストも取り入れ家族が暮らしやすい家にしたいです。
- プラン決定のポイントと工夫
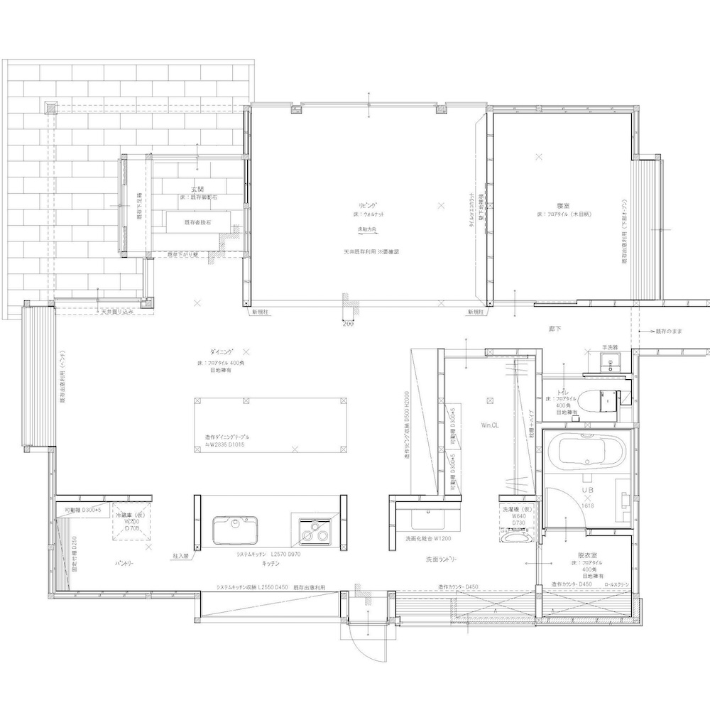
- 建物南東には元々増築で離れのような建物と繋がっており(今回の工事範囲外)、10畳近い部屋が2部屋ある。
そのまま居室として活用できる為、今回のリノベーションでは敢えて寝室のみしか作らず、その分LDKや収納、水廻りスペースを広く設けた。
- 施主様ご感想:満足度など
- 解体工事中に急遽既存残し部分を増やしたり、色んな無理を聞いていただきましたが、結果、想像を超える仕上がりになりました。当時の面影を残しつつ私たちの要望も入った私たちだけの住処になった事に心から感動、感謝しています。
- 選択した性能向上の特性に配慮した点
- 床、壁共に断熱工事が施されてなかった為、断熱工事を施し性能向上を図った。

リフォーム概要 / 福岡県F様邸
- 家族構成 大人2名、子供3名
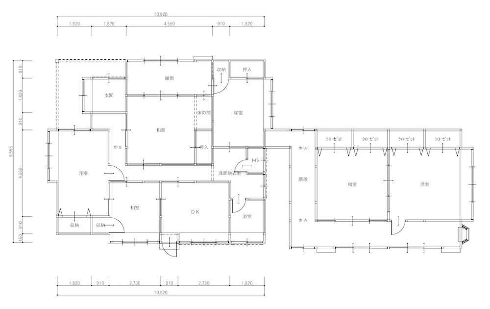
- 間取り 1LDK ※渡り廊下の先に2部屋あり
- 築年数 36年
- 住宅形態 木造平屋建て
- 費用 2160万円
- リフォーム面積 92㎡
- リフォーム箇所 戸建て全面
リフォーム後
間取り
Before
After審査員からのコメント
会社データ
- 会社名
- 株式会社タカノホーム
- 対応可能エリア
- 福岡市近郊
- 本社住所
- 〒811-1351 福岡県福岡市南区屋形原1-36-20
- 営業時間
- 10:00~18:00
- お問い合わせ
- 092-566-3838092-566-5700
- 会社概要
- 社 名:株式会社 タカノホーム
本 社:福岡県福岡市南区屋形原1-36-20
代表取締役社長:鷹野 耕治
設 立:1972年2月
社員数:約23名
資本金:3,000万円
建設業許可:福岡県知事許可(般-4)第62168号
宅建業免許:福岡県知事(15)第2961号
二級建築士事務所:福岡県知事第2-60515号
【事業内容】
新築注文住宅/リノベーション/リフォーム/不動産売買・仲介/各種保険代理店

「新旧が調和する」という意味は、画像と新旧の平面図を、さらにじっくりと観察することで見えてきます。おそらく「希少となった素材」とは、主に天井の無垢板だとわかる。このために、キッチン前の5本の柱を残し、梁の補強(つまり天井の解体)を避けている。残した柱に造り付のテーブルが絡む、少し不思議な空間となっているが、おそらく、ほぞ穴を埋め、グレーに塗装された柱と新しい床のタイルの色合い、素材感を揃え、一つのまとまりのある空間デザインとしている。新旧素材の持つ光の反射と吸収の対比は美しく、是非、日常生活の中での素材感を見てみたいと思った作品です。