REFORM CONTEST 2025
デザイン部門最優秀賞
一戸建てテーマ/60年の時を紡ぐ、再生の宿り木

- 会社名
Banana works LABO・ドクターリフォーム (株)サンポウ
- 担当者
佐藤 弘人
- 住所
〒321-0976 栃木県宇都宮市岩本町394-11
- URL
- 施主様ご要望:リフォームの動機
- 築60年の空き家だった中古木造住宅。広い敷地で家庭菜園を楽しみ、縁側で夫婦が語らう暮らしを夢見ていたお施主様は、この中古住宅に巡り合い、移住を決意。予算面で新築では叶わなかった理想をリノベーションで実現し、旅館のような非日常感と心地よさを兼ね備えた住まいをご希望。
- プラン決定のポイントと工夫
- ご夫婦の夢である縁側での暮らしと、旅館にいるような、落ち着きを軸にプランを決定。既存の縁側や建具を活かしつつ断熱改修で快適性を確保。造作本棚やカウンター収納で趣味に寄り添い、間接照明と木の質感で非日常感を演出。省エネ性と趣味性を両立し、住宅価値を高めた。
- 施主様ご感想:満足度など
- 長年の夢だった縁側でのんびり過ごす時間が実現し、夫婦で庭を眺めるひとときに幸せを感じています。木の温もりに包まれたリビングは、まるで旅館に滞在しているような心地よさがあり、友人にも好評です。リノベーションでここまで理想の住まいになるとは想像以上で、大変満足しています。
- 選択した性能向上の特性に配慮した点
- 断熱改修とサッシ更新により、快適な住環境と高い省エネ性能を両立させた住宅。

リフォーム概要 / 栃木県M様邸
- 家族構成 大人2名
- 間取り 3LDK
- 築年数 60年
- 住宅形態 在来木造
- 費用 1480万円
- リフォーム面積 104㎡
- リフォーム箇所 平屋全面
リフォーム後
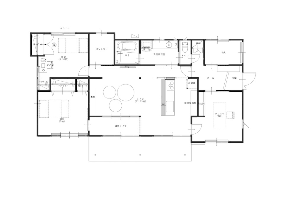
間取り
Before
After審査員からのコメント
会社データ
- 会社名
- Banana works LABO・ドクターリフォーム (株)サンポウ
- 対応可能エリア
- 栃木県・群馬県・埼玉県
- 本社住所
- 〒321-0976 栃木県宇都宮市岩本町394-11
- 支店・営業所
- 北関東7店舗
- 営業時間
- 10:00~18:00
- お問い合わせ
- 028-621-6551
- 会社概要
- 社 名:株式会社 サンポウ
店 舗:Banana works LABO・ドクターリフォーム
本 社:群馬県沼田市薄根町4470-1
代表取締役社長:平井秀明
設 立:1971年3月
社員数:約220名
資本金:3,000万円
売 上:2024年9月度決算 60億
【事業内容】
ウェディング、ホテル経営、住宅工事、大理石・花岡岩等輸入及び石材工事全般、公園墓地、石造建築、テーマパーク、その他

築60年の中古木造住宅のリノベーションです。大きな間取りの変更は見られないものの、住まいの中心となる、既存の洋間、和室、廊下、縁側を一室としたLDKはシンプルながら特徴的。床、天井仕上げは同一であるが、唯一空間として残した縁側が、居場所への手がかりと空間性、庭への広がりと奥行きを作り出している。単純な装置ともいえる、既存縁側との障子を残す造作によって、一つの暮らしの拠り所を作り出しています。まさに、日本におけるリノベーションでしか獲得できない暮らしが出現していると言えます。