REFORM CONTEST 2025
デザイン部門最優秀賞
マンションテーマ/ただいまから始まる 3世代の「まるい」暮らし

- 会社名
株式会社OKUTA
- 担当者
LOHAS studio デザインチーム
- 住所
〒330-0802 埼玉県さいたま市大宮区宮町3-25
- URL
- 施主様ご要望:リフォームの動機
- お母さまが一人暮らしで心配になってきた為、ご実家の同居リフォームを計画。6人それぞれの部屋を設けつつ、広々としたリビングがほしい、洗濯~干す~アイロンがけ~仕舞う動線を効率良くしたいとのご要望。
- プラン決定のポイントと工夫
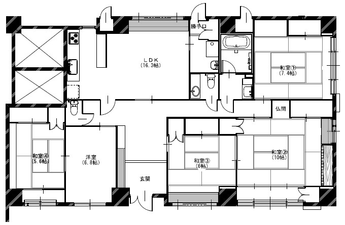
- 水廻りなどのコア空間を囲むように6部屋を「まるい」ラウンドができる動線で構成。洗濯は廊下にある洗濯スペースで洗濯、ランドリースペースで干す~アイロンがけ~仕舞う動線が完結でき、奥様の部屋はランドリースペースとLDKにも近い為、家事動線も更にスムーズに。永く受け継がれる住まいとなるよう、飽きの来ない素材とカラーで心地よい空間に仕上げた。
- 施主様ご感想:満足度など
- 多世帯で暮らすようになり、家族での会話も増え、母も安心して過ごせるようになりました。
- 選択した性能向上の特性に配慮した点
- バリアフリー、
生活動線、空間効率の良い間取りプラン

リフォーム概要 / 埼玉県T・S様邸
- 家族構成 大人6名
- 間取り 7LDK
- 築年数 31年
- 住宅形態 鉄筋コンクリート造
- 費用 3,560万円
- リフォーム面積 154㎡
- リフォーム箇所 マンション全面
リフォーム後
間取り
Before
After審査員からのコメント
会社データ
- 会社名
- 株式会社OKUTA
- 対応可能エリア
- 東京、神奈川、埼玉、千葉、栃木
- 本社住所
- 〒330-0802 埼玉県さいたま市大宮区宮町3-25
- 支店・営業所
- 首都圏20店舗
- 営業時間
- 10:00~18:00
- お問い合わせ
- 048-631-1163
- 会社概要
- 社 名:株式会社 OKUTA
店 舗:LOHAS studio(首都圏20店舗)
Handyman(首都圏50店舗COM加盟店含む)
本 社:埼玉県さいたま市大宮区宮町3-25
代表取締役会長:奥田 イサム
代表取締役社長:小泉 太
設 立:1992年1月(創業:1991年)
社員数:約300名
資本金:6,700万円
売 上:2024年9月度決算 76億6,800万円(OKUTA Family連結決算)
【事業内容】
高品質・高性能で健康と環境を配慮した住宅デザインリフォーム・長期優良住宅推進モデル事業対応戸建住宅-マンション(LOHAS studio)・水まわりに特化したリフォーム(Handyman)・新築(LOHASTA home)・不動産仲介(OKUTA不動産)・オリジナル建材開発販売・自然エネルギー機器(太陽光発電、太陽熱温水等)販売(OK-DEPOT)
*長期優良住宅推進モデル事業対応(戸建住宅、マンション)

築30年以上の建物をリノベーションし、家族の理想的な生活を実現した事例です。RC構造特有の水回りの課題、空間効率、そしてインテリアの好みなど、複数の問題を解決しています。本コンテストでは、水回りのコア計画や動線設計、個室や家事スペースの配置、インテリア選定といった点が評価されています。施主の要望を叶えただけでなく、仕上がりにも高い完成度が見られ、設計・施工チームの優れた技術力が最優秀賞にふさわしい作品となっています。