REFORM CONTEST 2025
デザイン部門最優秀賞
一戸建てテーマ/住み継ぐ家~安心できる住まいへ。70代の上質なリフォーム~

- 会社名
株式会社 筑豊住建
- 担当者
髙橋 望 / 松岡 絵美
- 住所
〒820-0068 福岡県飯塚市片島2-5-10
- URL
- 施主様ご要望:リフォームの動機
- 実家のリノベーション
耐震・断熱性能の向上と水まわりの老朽化対策に加え、姉妹二人暮らしでは広すぎる間取りを見直して、さらに、将来は娘家族と同居しても快適に暮らせるよう、動線改善とバリアフリー化をご希望でした。
- プラン決定のポイントと工夫
- 北側キッチンと南側和室を一体化し、家族が集える大空間LDKを創出。欄間や吹抜を残し趣を活かしつつ和モダンに再構成。動線と水まわりを整理し、耐震・断熱・全室バリアフリーを実現。将来の同居にも安心の住まいに。
- 施主様ご感想:満足度など
- 「広くした洗面室や引戸のトイレ、造作家具など細部の配慮が暮らしやすさと、好きなデザインで自宅がますます好きになりました。将来の娘家族との同居にも安心できます。リフォームしてよかった!こんなに変わるなんて!」とのお言葉を頂きました。
- 選択した性能向上の特性に配慮した点
- 耐震診断に基づき
筋交、耐震金物、耐震ボードにて補強

リフォーム概要 / 福岡県A様邸
- 家族構成 大人2名
- 間取り -
- 築年数 50年
- 住宅形態 木造
- 費用 2810万円
- リフォーム面積 125㎡
- リフォーム箇所 家全体
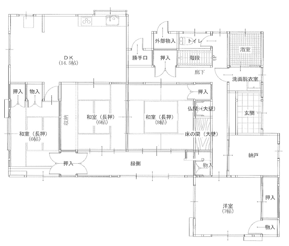
リフォーム後
間取り
Before
After審査員からのコメント
会社データ
- 会社名
- 株式会社 筑豊住建
- 対応可能エリア
- 筑豊エリア全域
- 本社住所
- 〒820-0068 福岡県飯塚市片島2-5-10
- 営業時間
- 平日・土曜 8:30〜17:00
- お問い合わせ
- 0948-25-33230948-29-5003
- 会社概要
- 社 名:株式会社 筑豊住建
本 社:福岡県飯塚市片島2-5-10
代表取締役会長:髙橋 邦夫
代表取締役社長:髙橋 望
設 立:1982年4月1日
資本金:4,000万円
【事業内容】
全面リフォーム,リノベーション/2世帯住宅リフォーム/水廻りリフォーム/増改築工事(減築工事)/中古住宅,空き家リフォーム/建替え,新築/屋根,外壁リフォーム/エクステリア工事/古民家リノベーション
建設業許可: 福岡県知事(般-3)第17305号
二級建築士事務所: 福岡県知事 第2-30217号

既存の和室の造作を巧みに活かしながら新たな空間を提案している作品。和の要素を残すだけでなく、新しく作る部分が和室の構成要素の高さや幅に合わせてあるなど、新旧が程よく混ざり合った空間が出来上がっている。性能アップにとどまらず、古いものを活かしながら高い意匠性を生み出した点が評価された。