REFORM CONTEST 2025
デザイン部門公益財団法人住宅リフォーム・紛争処理支援センター理事長賞
マンションテーマ/景色は最高のごちそう。私達にフィットしたキッチン

- 会社名
株式会社ゆめや
- 担当者
松長 麻也
- 住所
〒658-0032 兵庫県神戸市東灘区向洋町中6-9神戸ファッションマート1F
- URL
- 施主様ご要望:リフォームの動機
- 家族全員リビングの窓から見る景色がとても好きで、娘はダイニングテーブルに座らずキッチンに座って外を眺めながら食事をしている。料理をしていても食事をしていても外を眺める事が出来るキッチンにしたい。友人を招いて食事会をよくするので、最大8人が座れる様にしたい。モールテックスを使いたい。
- プラン決定のポイントと工夫
- キッチンを窓側に移設、空いたスペースに大きなダイニングテーブルを設置し常に窓向きの配置に。ダイニングテーブルとキッチンを一体にする事で配管スペースを作り床に段差を作らずキッチンを移設出来た。リビングテーブルを仮設のダイニングテーブルに、キッチン側に収納兼椅子を作り最大8人が座れる大テーブルになった。
- 施主様ご感想:満足度など
- ベランダ越しに眺める外がとても気に入っているのでこの配置に大満足です。希望だったモールテックスをキッチンやダイニング、柱型に採用する事でまるで昼はカフェ、夜は間接照明もありバーの様な雰囲気に。リノベーションしてからは友人を良く招いてパーティーをしています。
- 選択した性能向上の特性に配慮した点
- ・維持管理
・可変性

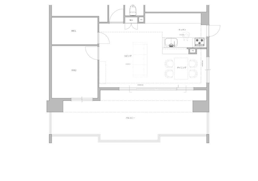
リフォーム概要 / 兵庫県Y様邸
- 家族構成 大人3名
- 間取り 3LDK+WICL
- 築年数 26年
- 住宅形態 SRC造
- 費用 550万円
- リフォーム面積 32㎡
- リフォーム箇所 LDK
リフォーム後
間取り
Before
After審査員からのコメント
会社データ
- 会社名
- 株式会社ゆめや
- 対応可能エリア
- 神戸市・芦屋市・西宮市・北区・西区
- 本社住所
- 〒658-0032 兵庫県神戸市東灘区向洋町中6-9神戸ファッションマート1F
- 営業時間
- 10:00~18:00
- お問い合わせ
- 078-843-2569078-843-2589
- 会社概要
- 社 名:株式会社ゆめや
店 舗:六甲アイランド店(リフォーム図書館)
本 社: 神戸市東灘区向洋町中6-9
神戸ファッションマート1F
代表取締役社長:盛 静男
設 立:1989年3月17日
社員数:20名
資本金:1000万円
資格:一級建築士事務所 第01A02660号
建設業許可【建築工事業・内装仕上工事業】兵庫県知事 許可(般-27)第111033号
兵庫県住宅改修業者登録 兵住改 A11 第00044号
住宅瑕疵担保責任保険届出事業所 A5100767
【事業内容】
住まいの設計・施工・リフォーム
住宅リノベーション・増改築・屋根/外壁リフォーム
インテリアデザイン
リフォーム図書館併設

キッチン部門から選出され最優秀賞を勝ち取った力作です。キッチンは、単なる設備ではなく、暮らしを豊かに彩る空間へと進化しました。施主はグリーンを積極的に採用し、環境への配慮あるライフスタイルを実現しています。モールテックスの導入も自然な流れで選ばれ、設計段階から自然・サステナビリティ・エシカルという観点が随所に丁寧に盛り込まれています。