REFORM CONTEST 2025
デザイン部門全国最優秀賞
一戸建てテーマ/新×5・古×9・既×10~再生しながら引き継ぐ建具の歴史~

- 会社名
株式会社土屋ホームトピア
- 担当者
佐々木 綾菜
- 住所
〒060-0809 北海道札幌市北区北9条西3丁目7 土屋ホーム北九条ビル1階
- URL
- 施主様ご要望:リフォームの動機
- 2年前に北海道から京都へ移住。お洒落な京町家の賃貸物件に暮らしていたが、夏は暑く冬は北海道の家より寒い。日中でも太陽光が入らない暗い家。そんな賃貸暮らしを経て中古京町家を購入。古いものを可能な限り使って京町家の趣を残しながらも、暖かく快適に暮らせる家にしたい。
- プラン決定のポイントと工夫
- 建具は①10箇所は既存使用されていたものを綺麗にリメイクし再利用。②9(中古購入)+5(新規作成)の14箇所は京都や神奈川県の古建具屋さんより購入した建具と、新調建具を組み合わせ唯一無二の空間を実現。また天井・壁・床・窓を断熱することで、意匠性・快適性を両立させた。
- 施主様ご感想:満足度など
- 賃貸から引越して、同じ京町家でもこんなに快適な暮らしが出来るのだと感動しました。家族にとって1番くつろぐ事の出来る空間となり、このお家を購入して、そしてリフォームして良かったです。歴史を刻んだ建具と共にゆったりと残りの人生を楽しみたいと思います。
- 選択した性能向上の特性に配慮した点
- 断熱性を向上した上で、既存の柱・梁・建具を補修・調整しながら活かした点。

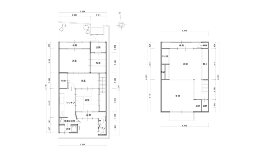
リフォーム概要 / 京都府K様邸
- 家族構成 大人2名・子供1名
- 間取り 4LDK
- 築年数 115年
- 住宅形態 木造
- 費用 2200万円
- リフォーム面積 116㎡
- リフォーム箇所 全面
リフォーム後
間取り
Before
After審査員からのコメント
会社データ
- 会社名
- 株式会社土屋ホームトピア
- 対応可能エリア
- 下記支店営業所近郊
- 本社住所
- 〒060-0809 北海道札幌市北区北9条西3丁目7 土屋ホーム北九条ビル1階
- 支店・営業所
- 京都営業所
- 営業時間
- 9:00~18:00
- お問い合わせ
- 011-896-3302011-896-3011
- 会社概要
- 社 名:株式会社 土屋ホームトピア
店 舗:北海道・東北・関東他23店舗
本 社:北海道札幌市厚別区厚別南1丁目18-1
代表取締役会長:菊地 英也
設 立:1982年(昭和57年)6月
資本金:2億円
売 上:2023年10月度決算 42億2,800万円
【事業内容】
住宅リフォーム・マンションリフォーム・インテリア・エクステリア・店舗設計などの企画・施工*長期優良住宅推進モデル事業対応(戸建住宅、マンション)

既存品、中古品で新しい間取りを作ったリノベ。暖かい家にしたいというお客様の要望に応えた新たな間取りを実現する際に、なるべく既存建具を用いて平面を構成、足りない分の多くは中古建具を購入して使用している。出来上がった空間は京町家の風情にあった完成が高いものであるだけでなく、サーキューラーな取り組みとして興味深かった。